Skip to Content

CDE-006 Minimum Standards for Securing Abandoned or Damaged Structures

Permit and Resource Management Department Banner 750

Version 11/08/2023

Purpose

To provide minimum standards for securing abandoned or damaged structures.

The Chief Building Official may order, or a property owner may choose, to vacate a building because the building cannot be repaired or rehabilitated for an extended period of time. In either case, measures must be taken to prevent the building and property from becoming a public nuisance. If the building is so damaged, dilapidated, or partially demolished as to prevent the ability to safely board the building, the property may be fenced. If site conditions prohibit the ability to secure a property by fencing, the building may need to be demolished.

Note: A building permit is required to verify correct boarding and to monitor the structure once secured. Call the Permit Sonoma Code Enforcement staff for fee requirements.

Requirements

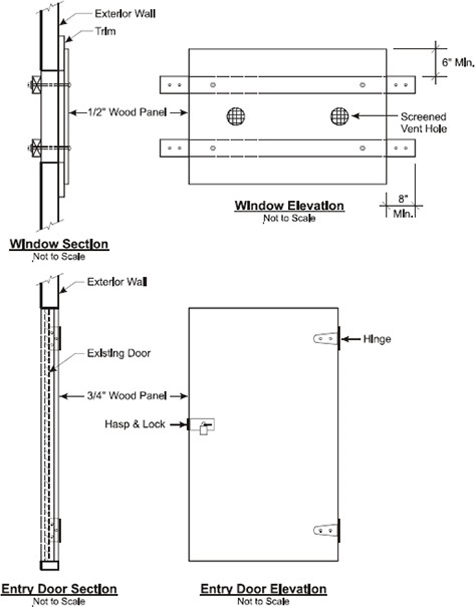
  1. The following requirements shall be followed when securing a building by boarding the doors and windows (see diagram below).

    Windows:
    1. Structural wood panels shall be cut to fit the window opening neatly or shall be cut to provide an equal overlap at the perimeter of the window.
    2. Windows shall be opened to allow a carriage bolt to pass through the window, or the window glazing shall be removed and The 2 inches x 4 inches boarding frame material shall be cut 8 inches wider than the window opening and shall be placed on the inside of the window opening approximately 6 inches from the top and bottom of the window opening. The framing and boarding shall be installed and secured.
    3. Vent holes shall be cut into the structural wood panels and screened.
    Doors:
    1. Structural wood panels shall be cut to fit the door neatly or shall be cut to provide an equal overlap at the perimeter of the door.
    2. The entry door structural wood panel shall be fitted to the door casing with a minimum 1/8 inch clearance on all The structural wood panel shall be double hinged from the inside with a hasp and padlock for securing. The installation shall be such that all exposed bolts cannot be removed. The installation shall be non-interfering with the building door and should open and close freely from other obstructions.
    Any floors above the first story that are rendered inaccessible need not be secured. All work shall be done in a neat and competent manner.

    Boarding Materials:
    • Sheet material shall be 1/2 inch nominal structural wood panels (plywood or OSB) except that one entry door into the building shall be provided with a 3/4 inch nominal structural wood panel.
    • Framing material shall be nominal 2 inch by 4 inch solid sawn lumber.
    • Fasteners shall be a 3/8 inch diameter carriage or lag bolts of such a length as required to penetrate the assembly to appropriately secure the wood panel.
    • Vent holes shall be cut into the structural wood panels and screened.
    • Structural wood panels shall be painted a neutral color. 
  2. The following requirements shall be followed when securing a building by fencing:
    1. Fencing shall consist of a metal chain link fence 6 feet in height. The fence shall be installed to withstand a 50-pound lateral force applied to the top of the fence.
    2. The fence shall completely encircle the property and not be directly attached to the structure as to provide a climbable surface for accessing the structures upper floor or roof.
    3. A use permit may be required for a fence in some zoning districts.

More Information: 7-0-11 Minimum Standards for Securing Abandoned or Damaged Structures (PDF)

Diagram: Minimum Boarding Standards

(All measurements are in inches.)

Minimum Boarding Standards for Securing Abandoned or Damaged Structures